YSM20WR高效模块贴片机
YSM20WR高效模块贴片机
产品详情
/ PRODUCT DETAILS
高速通用一体化贴装头
进一步对无需更换贴装头、在维持高速性的状况下可对范围广泛的各种元件进行贴装的“单一贴装头解决方案”进行了改进,备有两种贴装头。使用高速通用贴装头也可对应超小型(0201mm)芯片元件的贴装。
高速通用(HM:High-Speed Multi)贴装头
是一种万能型贴装头,不仅具备高速性,而且还兼备通用性,从0201mm的超小型元件到55×100mm、高度15mm的大型元件均可对应。
异形(FM:Flexible Multi)贴装头
是一种元件对应能力超宽范围型贴装头,支持载荷控制,从03015mm的超小型元件到55×100mm、高度28mm的高型元件及超大型元件均可对应。
实现81,000CPH(本公司最佳条件)的卓越贴装能力
通过对元件吸取到贴装的动作进行改良、加快XY轴的速度,使得贴装速度比以往机型提高了5%,达到81,000CPH。
大幅改进了实际生产对应能力
通过采用新型宽幅扫描相机,将可高速贴装的元件尺寸从□8mm扩大到□12mm,而且通过侧面照明,还可对CSP/BGA等球形电极元件进行高速识别。
两种横梁结构
可根据贴装能力及生产形态,选择双横梁或者单横梁对X轴进行构成,实现了通用平台。
可广泛贴装各种元件,充分体现“Limitless EXpansion(无限扩展)”
可贴装的元件
灵活的传送带构成
与Z:TA-R的互连极为简便容易,可根据生产形态,构建最佳的双轨生产线(1~4轨间的传送带距离为630mm规格时)。在单轨机型中,可对应最大基板厚度8.0mm、最大基板重量10kg的超大型基板的贴装。
单轨
W=742
双轨
传送2张
同种基板
W=356
双轨
传送2张
异种基板
W=662
标准配备多种功能,支持高品质的贴装
侧视功能
不耽误贴装时间,即可对元件的有无及取料状态进行检测。
排气站
通过其自动排气清洁功能,可以长时间保持吸嘴的清洁状态。
高速智能识别
标准配备有“高速智能识别”功能,可在短时间内制作出特殊形状元件的识别数据,实现了健全性极高的元件识别。
实现高效供料
无停机托盘换料ATS装置“sATS30NS”
sATS30NS
该装置是在30层固定型自动更换式托盘送料装置“sATS30”中又追加了新功能,可在保持自动运转的状态下排出空料盘并供给新料盘。通过与被自动排出的空料盘进行交换,安装上新的料盘,只需按下供给按钮,即可将新料盘自动投入到料盘匣仓中,另外,在生产准备时还可以对料盘匣仓进行统一安装。
无停机送料器一次性换料系统
在换料台车拆装时的开口部分,设置有吸取部能够开闭的遮板式罩盖。若拆下台车,遮板即可自动关闭,无需停止设备就能够对台车进行更换,提高了贴片机的运转率。
新开发的Auto Loading Feeder
新开发出一种不用停止设备、只需插入料带、就可以补充料带元件的Auto Loading Feeder。采用雅马哈独创的中央开放方式,降低了因绒毛及剥离带电所导致的元件吸取失误。而且,不需要实施端头料带的回收处理作业,使得设备的运转率大幅提高。
ZS送料器
是一种薄型、轻量、小巧的单轨型电动式智能送料器。可以对无停机送料器更换功能的规格进行选择。
基本规格
|
机型 |
YSM20WR |
|
对象基板尺寸 |
单轨机型:L810 × W742mm ~ L50 × W80mm |
|
贴装头/可贴装的元件 |
高速通用(HM)贴装头※1:0201mm ~ W55 × L100mm、高度15mm以下 |
|
贴装能力 |
X轴双梁※1:高速通用(HM)贴装头×2 81,000CPH |
|
贴装精度 |
±0.035mm(±0.025mm)Cpk≧1.0(3σ) 本公司最佳条件(使用评估用标准元件)时 |
|
元件品种数 |
固定板送料器:最多140种(以8mm料带式送料器换算) |
|
电源规格 |
三相 AC 200/208/220/240/380/400/416V ±10% 50/60Hz |
|
供给气源 |
0.45MPa以上、清洁干燥状态 |
|
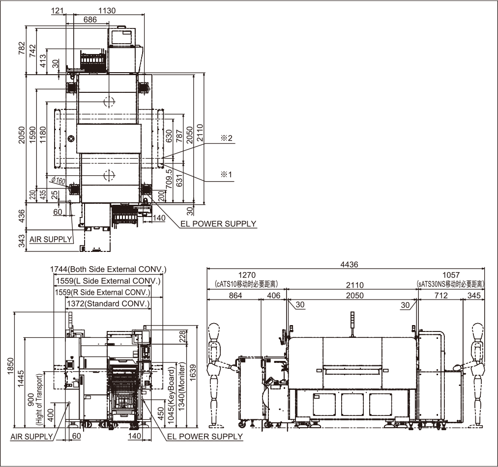
外形尺寸(突起部除外) |
L1,374 × W2,110 × H1,445mm(仅限主体) |
|
主体重量 |
约2,500kg(仅限主体) |
※1:1~4轨间的传送带距离为787mm规格。
※2:1~4轨间的传送带距离为630mm规格。
※3:关于0201mm元件的贴装,请另行咨询。
因改良需要,规格及外观可能会有所变更,恕不另行通知。
外观尺寸
