YCP10高性能小型印刷机
YCP10高性能小型印刷机
产品详情
/ PRODUCT DETAILS
可通过程序,对刮刀的刮印角度(45~65°、1度为单位)和速度进行任意设定和变更,可以根据所使用的锡膏,在最佳条件下进行印刷。
3S印刷头 体积和刮印角度
通孔的印刷(从背面摄影)
通过采用网板吸附功能,可不受网板弯曲的影响,实现稳定的高精度印刷。而且,在往复印刷时不需要输入补正值,可以大幅缩短生产准备的时间。
无网板吸附
有网板吸附
在清洁作业之后,可对所生产基板的锡膏填充量进行校正,减少印刷的不均匀。
通过填充校正功能对锡膏转印量进行改善的示例
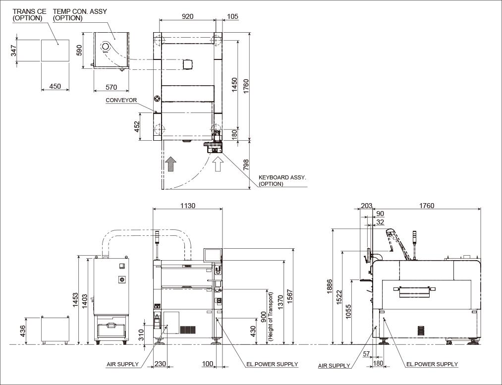
拥有宽度仅为1,130mm的紧凑型机身,支持L510XW460mm的大型基板,同时支持各种网板规格。可以缩短生产线并提高生产效率。
|
可对应的网板尺寸 |
|
|
标准件 |
选配 |
|
L750×W750mm |
L600×W550mm |
|
L736×W736mm |
L550×W650mm |
|
L750×W650mm |
L584×W584mm |
|
L650×W550mm |
|
NG检测例
利用其高分辨率、广角型的检查专用相机,可以实现专业化印刷检查。
在显示屏上对2个图像进行图层重叠,可直观确认基板与网板的相对位置。无需掌握专门技巧,即可立即对印刷定位进行参数微调。
可以对清扫类型、速度、吸附有无等条件进行随意设定,并能够根据状况自动进行清扫。
在设备的前面设置有大容量的溶剂罐。除了可在生产中更换溶剂之外,还易于对溶剂的剩余量进行目视确认。
可利用条形码对锡膏、网板、刮刀进行ID管理,在生产准备作业中,通过将基板数据与实际作业进行对照,可以防止误操作。另外,还能够对锡膏材料进行期限管理。(受潮期限、氧化期限、保修期限)
可定期(1次/往复)对网板上锡膏的滚动幅宽进行检测,并通过报警等功能,防止操作人员错过补充时机或忘记补充。
可将YCP10识别的坏板标记信息转送到贴片机上,从而削减循环时间的损耗、提高生产率。
极力追求日本制造的精益求精,制造高耐久性的产品。 充分发挥能够制造印刷机、点胶机、贴片机、检查装置等全部贴装设备的厂商特有优势,实现了整个生产线的高效率,提高了产品质量。
|
|
YCP10 |
|
对象基板 |
L510 × W460mm ~ L50 × 50mm |
|
印刷头 |
3S(Swing Single Squeegee)刮刀头 |
|
印刷精度 |
重复对位精度(6σ):±0.010mm |
|
周期时间 |
8秒(标准印刷:本公司最佳条件下、印刷时间除外) |
|
可支持的网板尺寸 |
L750×W750mm、L736×W736mm、L750×W650、L650×W550mm、 L600×W550mm(选配)、L550×W650mm(选配)、 L584×W584(选配) |
|
电源规格 |
单相 AC 200/208/220/230V ±20V 50/60Hz |
|
供给气源 |
0.45MPa以上、清静干燥 |
|
外形尺寸(突起部除外) |
L1,130mm × W1,760mm × H1,370mm |
|
重量 |
约1,100kg |
因改良需要,规格及外观可能会有所变更,恕不另行通知。
